314 mq
4
2
RASA DI Varese
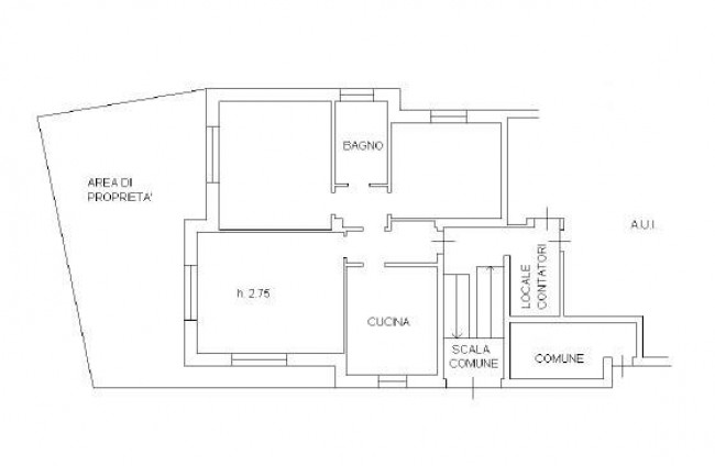
Sempre nel Comune di Varese, poco dopo Sant'Ambrogio, in direzione Nord, vi proponiamo questa soluzione immobiliare da ristrutturare a vostro piacere.
Si tratta di due appartamenti, rispettivamente di 100 mq e 200 mq posti al piano terra e piano primo di questa piccola palazzina.
Gli immobili possono essere anche uniti in un'unica soluzione così da creare un ambiente hobby / multiuso al piano terra e la dimora principale al piano primo.
Le soluzioni sono diverse a cui possono essere destinati questi locali.
Ci sono altresì un box doppio ed un posto auto esterno oltre ad un ampio giardino condominiale che circonda l'immobile.
Contattaci per saperne di più.

314 mq
4
2